友家地产
芜湖
芜湖
马鞍山
巢湖
二手房
新房
租房
经纪人
小区
写字楼
商铺
资讯
别墅
登录
个人中心
/
注销
加载中...
微信扫码,查看详情
操作成功!这是一个更好看的提示框。
扫码登录
加载中...
已扫码
微信扫码登录
买房
别墅
弋江
南瑞
柏庄丽城联排南中装真实好房
收藏
上一张
下一张
7日新上
大花园
348
万
咨询首付、按揭及税费
单价:1.6
万
元/m²
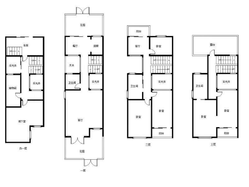
4房2厅3卫
联排 | 共3层
218.0m²
建筑面积
南
2009年建成
楼盘名称
柏庄丽城
所在区域
弋江-南瑞
看房时间
可看时间请咨询经纪人
房源编号
P115549
举报
水新鹏
15395365663
在线聊
买房必问
价格还能再优惠吗?
小区成交情况怎么样?
业主诚心卖吗?
小区有车位吗?
基本信息
基本属性
户型
4房2厅3卫
朝向
南
建筑面积
218.0m²
套内面积
-
用途
别墅
电梯
-
产权性质
-
建成
2009年
产权年限
70年
楼层
联排 | 共3层
装修
中装
挂牌时间
2025/12/14
房源信息所示的户型图、房屋用途、建成年代、产权年限、建筑结构等信息仅供参考,购房时请以房产证信息为准。
地图周边
交通
学校
医疗
金融
购物
小区资料
查看小区
柏庄丽城
楼栋数
77栋
总户数
2542户
建造年代
2009年
车位
120个
容积率
1.8
绿化率
42%
物业公司
柏庄物业
信息仅供参考,土地使用起止年限详见业主土地证明材料或查询相关政府部门的登记文件
同楼盘房源
关于我们
分支机构
免责申明
人才招聘
网站地图
客服电话: 18205538555
客服邮箱: 2410330126@qq.com
客服QQ: 2410330126
芜湖二手房
芜湖租房
芜湖新房
镜湖二手房
鸠江二手房
弋江二手房
无为二手房
三山二手房
南陵二手房
芜湖县二手房
繁昌二手房
镜湖租房
鸠江租房
弋江租房
无为租房
三山租房
南陵租房
芜湖县租房
繁昌租房
镜湖新房
鸠江新房
弋江新房
无为新房
三山新房
南陵新房
芜湖县新房
繁昌新房
Copyright © 2025 www.youjiatop.com 友家地产 版权所有 All Rights Reserved
隐私条款
|
注册协议
|
用户权限
皖ICP备19013773号