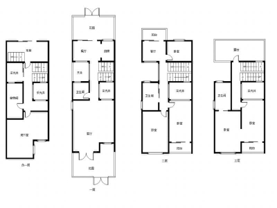
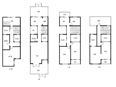
柏庄丽城联排别墅南北毛坯真实好房
房源编号:P058478  2022-11-11发布
虚假举报
460
单价19742元/㎡
关注

毛坯

233

面积

-

共1层

临街
类型 别墅
建成 2009年
片区弋江南瑞
产权 -
地址弋江区 柏庄时代广场 柏庄丽城地图周边
学位 安徽师范大学附属外国语学校翠文中学
曹昌乐
曹昌乐
18355311088

楼盘详情

楼盘:
柏庄丽城
开 发 商:
单位自建
车位:
120
停车费:
地上 0.00元/月  地下 0.00元/月
供暖类型:
-
用水类型:
-
用电类型:
-
燃气费用:
-
房间描述成熟小区,朝向:朝南,户型开阔全明绝世好房。房间清爽干净,客厅宽敞大气,采光极佳,居住环境温馨舒适。好位置,好楼层,闹中取静小区介绍:物业管理完善,24小时热水,保安全天服务,小区绿化率高达周边配套设施完善!生活便利,交通方便,四通八达,本房政策出来没影响,保证真实!随时都可以约看本房。24小时恭候您的来电!!