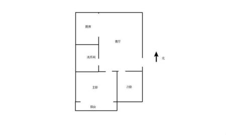
扦坡路68-70号 2室1厅1卫 75.0万 家电齐全
房源编号:P345456  2025-11-24发布
虚假举报
75
单价11029元/㎡
关注

2 1

普装

68

面积

中层 南

共6层

南北通透
类型 住宅
建成 -
片区镜湖镜湖区
产权 商品房
地址芜湖市镜湖区地图周边
圣敖玉
圣敖玉
13309636063

楼盘详情

楼盘:
扦坡路68-70号
开 发 商:
-
车位:
-
停车费:
-
供暖类型:
-
用水类型:
-
用电类型:
-
燃气费用:
-
房间描述此小区环境优美,绿化率高,闹中取静,地段的优越,小区封闭式管理,房型都是独门独户,所以一直被人们追捧。车站就在小区门口,商场和超市步行过去也只要10分钟。学校步行五分钟离得非常近。学校实行九年制学区房,生活中吃穿住行,样样都方便了!