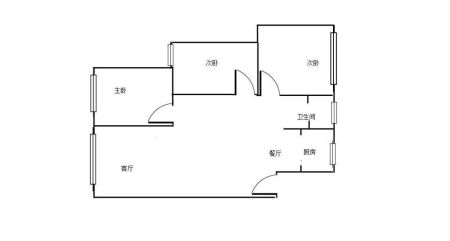
莲花新城一期2室2厅1卫南北精装真实好房
房源编号:P348439  2025-12-01发布
虚假举报
32.8
单价3489元/㎡
关注

2 2

精装

94

面积

中层 南北

共5层

南北通透 性价比高
类型 住宅
建成 2014年
片区三山三山广场
产权 -
地址三山时代广场地图周边
胡婷
胡婷
18298257206

楼盘详情

楼盘:
莲花新城一期
开 发 商:
近高岗埠路
车位:
100
停车费:
120.00元/月
供暖类型:
-
用水类型:
-
用电类型:
-
燃气费用:
-
房间描述此小区环境优美,绿化率高,闹中取静,地段的优越,小区封闭式管理,房型都是独门独户,所以一直被人们追捧。车站就在小区门口,商场和超市步行过去也只要10分钟。学校步行五分钟离得非常近。学校实行九年制学区房,生活中吃穿住行,样样都方便了!