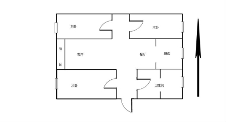
三华小区 3室1厅1卫 1,000元/月 采光充足
房源编号:P246165  2025-12-04发布
虚假举报
1000元/月
单价10元/㎡/月
关注

3 1

精装

98

面积

高层 南

共4层

采光充足
类型 住宅
建成 1994年
片区三山三山广场
产权 -
地址三山区 三山时代广场 三华小区地图周边
余辉
余辉
19145756995

楼盘详情

楼盘:
三华小区
开 发 商:
近团洲路
车位:
-
停车费:
150.00元/月
供暖类型:
-
用水类型:
-
用电类型:
-
燃气费用:
-
房间描述此小区环境优美,绿化率高,闹中取静,地段的优越,小区封闭式管理,房型都是独门独户,所以一直被人们追捧。车站就在小区门口,商场和超市步行过去也只要10分钟。学校步行五分钟离得非常近。学校实行九年制学区房,生活中吃穿住行,样样都方便了!