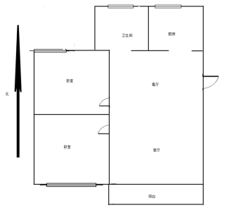
万春花园北区 2室2厅1卫 750元/月 南北通透
房源编号:P282078  2025-12-07发布
虚假举报
750元/月
单价10元/㎡/月
关注

2 2

简装

78

面积

高层 南北

共6层

南北通透
类型 住宅
建成 2015年
片区鸠江城北区
产权 商品房(70年)
地址鸠江区 万春购物广场 万春花园北区地图周边
林伟
林伟
15255309766

楼盘详情

楼盘:
万春花园北区
开 发 商:
近涌金路
车位:
-
停车费:
-
供暖类型:
-
用水类型:
-
用电类型:
-
燃气费用:
-
房间描述成熟小区,朝向:朝南,户型开阔全明绝世好房。房间清爽干净,客厅宽敞大气,采光极佳,居住环境温馨舒适。好位置,好楼层,闹中取静小区介绍:物业管理完善,24小时热水,保安全天服务,小区绿化率高达周边配套设施完善!生活便利,交通方便,四通八达,本房政策出来没影响,保证真实!随时都可以约看本房。24小时恭候您的来电!!