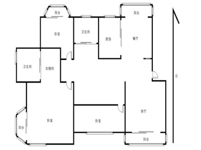
幸福花城5房2厅2卫南北精装真实好房
房源编号:P036471  2025-12-01发布
虚假举报
60
单价3409元/㎡
关注

5 2

精装

176

面积

高层 南北

共6层

满五年 唯一住房 南北通透 采光充足 三证齐全
类型 住宅
建成 2015年
片区三山三山广场
产权 商品房(70年)
地址三山区_幸福花城地图周边
金晓宁
金晓宁
18225785682

楼盘详情

楼盘:
幸福花城
开 发 商:
单位自建
车位:
-
停车费:
-
供暖类型:
-
用水类型:
-
用电类型:
-
燃气费用:
-

配套

  • 车库

房间描述此小区环境优美,绿化率高,闹中取静,地段的优越,小区封闭式管理,房型都是独门独户,所以一直被人们追捧。车站就在小区门口,商场和超市步行过去也只要10分钟。学校步行五分钟离得非常近。学校实行九年制学区房,生活中吃穿住行,样样都方便了!